Квартира в Черногории, в Будве — 62,75 кв.м — 250608 евро
(предложение № 17837)

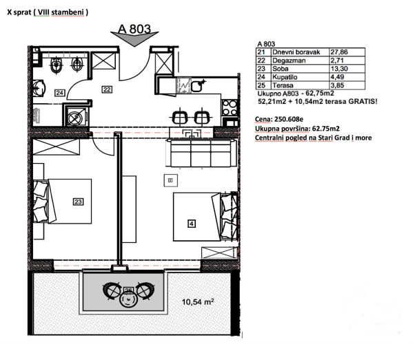
Двухкомнатная квартира в Черногории у моря - в эксклюзивном мультикомплексе Porto Budva. Объект расположен в курортной столице страны, на первой береговой линии. Площадь квартиры в Будве - 62,75 кв. м. Находится на 8-м этаже, отделка под ключ.

  • Квартира в Черногории, в Будве
  • Квартира в Черногории, в Будве
  • Квартира в Черногории, в Будве
  • Квартира в Черногории, в Будве
  • Квартира в Черногории, в Будве
  • Квартира в Черногории, в Будве
  • Квартира в Черногории, в Будве
    Основные характеристики
    • Вид недвижимости — Квартира в новом доме
    • Страна — Черногория
    • Город — Будва
    • Площадь — 62,75 кв.м.
    Параметры объекта
    • Число комнат — 2 комнаты
    • Число спален — 1
    • Этаж — 8-й
    • Всего этажей — 9
    • С балконом
    • C видом на море
    • До моря 20 метров
    • Частная парковка
    Дополнительные опции

    Кондиционер • Телефон • Интернет • Спутниковое ТВ

    Урбанизация • Водоснабжение • Канализация • Сад на участке

    Описание

    Квартира в новостройке Черногории включает гостиную, совмещенную с кухней, - 21,98 кв. м, спальню - 10,46 кв. м, гардеробную - 2,47 кв. м, совмещенный санузел - 4,59 кв. м, террасу - 3,6 кв. м. Восьмой этаж в комплексе соответствует высоте десятого этажа.

    В стоимость квартиры в Будве включена отделка под ключ с дизайнерским ремонтом. Комплекс находится рядом с историческим центром - Старым городом. Поблизости - пляжи, кафе, рестораны, порт для яхт.

    Недвижимость

    Оставьте заявку на этот объект. Мы оперативно позвоним или напишем Вам, уточним все важные моменты, связанные с Вашей заявкой, и передадим Ваши контакты продавцу недвижимости.